Archiv des Unvollständigen
Wie wollen wir in Zukunft zusammenarbeiten?
Diese Bachelorarbeit ist eine kritische Auseinandersetzung mit bisherigen Arbeitsweisen und akademischen Routinen und zugleich eine Erprobung neuer, grundsätzlicher Methoden zur Entwicklung von architektonischen Entwurfsstrategien.
Ziel ist es, deren Übertragbarkeit in eine perspektivische architektonische Praxis auszuloten. In einem experimentellen Setting wurden unter realen Bedingungen eigenständig entwickelte Arbeitsmethoden angewandt, evaluiert und dokumentiert, gewonnene Erkenntnisse gesammelt.

Ortsbezug:
Als Untersuchungsraum dient ein Transformationsareal in einem Gewerbegebiet.
Die spezifische Auseinandersetzung mit dem Ort ist Teil unserer Methodik. Der Ort wird dabei phänomenologisch erschlossen – durch Beobachtung, Dokumentation und Analyse. Ziel ist die Identifikation ortsspezifischer Bedarfe. Die kontinuierliche physische Präsenz ermöglicht eine differenzierte Wahrnehmung atmosphärischer, sozialer und räumlicher Phänomene. Im Rahmen dieser Betrachtung schlüsseln wir verschiedene Handlungsfelder auf dem Areal auf. Das zentrale Handlungsfeld bildet ein ehemaliger Baustoffhof. Die versiegelte Fläche ist dominiert von Leere und Zwischenlagerung, in in der sich Pionierpflanzen sukzessiv die Brache zurückerobern. Kleinunternehmer*innen die in den umliegenden Hallen lagern, finden soziale Begegnungen durch spontane, ungesteuerte Treffen auf der Fläche. Die Reaktivierung dieser brachliegenden Freifläche erfolgte exemplarisch durch die Konzeption, den Bau und Betrieb eines Hühnerstalls. Die Nutzung diente dabei als Katalysator sozialer Interaktion und kollektiver Verantwortungsübernahme. Menschen organisieren untereinander die Obhut für Tiere, tauschen sich aus.





Suchender Ansatz:
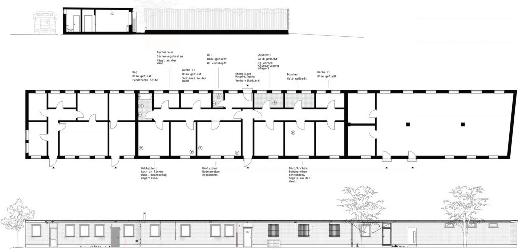
Grundlegend für das methodische Vorgehen war ein suchender Ansatz, der auf Ergebnisoffenheit und Prozessualität basiert. Wesentlicher Bestandteil war die Entwicklung eigener Werkzeuge zur thematischen Annäherung unter Einbeziehung heterogener, teils randständiger Informationen. Die Auseinandersetzung mit einer asbestbelasteten Baracke veranschaulichte diesen Ansatz: Anstelle konventioneller Abrissstrategien wurden alternative Vorgehensweisen entwickelt, um neue Bezüge herzustellen und erweiterte Handlungsspielräume zu generieren.



Schnitt, Grundriss EG, Ansicht

Dialogisch:
Die Zusammenarbeit erfolgt im ständigen Dialog und Austausch der individuellen Perspektiven, Standpunkte werden immer aufs Neue verhandelt.
Mit einem mobilen Büro, welches baulich unserem architektonischen Werteverständnis entspricht, schufen wir eine temporäre Infrastruktur vor Ort für kontinuierlichen Austausch, kollektive Wissensbildung und interaktive Reflexionsprozesse.



Zur langfristigen Verstetigung des im Studium erprobten experimentellen Rahmens, gründen wir ein Kollektiv. Dieses ermöglicht projektbasierte Kooperation sowie eine Fortsetzung kollektiver Arbeitsformen außerhalb institutioneller Strukturen. Dabei sind alle Handelnden Personen auf Augenhöhe und gleichrangig in die Projekte eingebunden. Das in diesem Kontext entwickelte Subbotnik-Format – ein kollektiver Bautag mit Fokus auf praktischer Tätigkeit, Wissensaustausch und Gemeinschaftsbildung – gibt einen Raum für alternative Arbeitspraktiken, in denen wir uns selbst ermächtigen, die reflektierten Prozesse in Handlungen zu übersetzten. Der Arbeitsprozess und die daraus gewonnenen Erkenntnisse wurden in einer Ausstellung vor Ort präsentiert.
Kontakt:
@kollektur.architektiv









